U Prilučkoj ulici na Voždovcu u planu stambena zgrada na četiri sprata
Na parceli od 357 m2 između Bulevara oslobođenja i Jove Ilića gradiće se objekat 2Po+P+3+Ps sa šest stanova i jednim poslovnim prostorom.
Kompanija ATOS INVEST iz Beograda planira gradnju višeporodične stambene zgrade na Voždovcu u Prilučkoj ulici broj 3 po projektu biroa Arhinaut VMR.
Prema Planu generalne regulacije, u predmetnoj zoni predviđeno je direktno sprovođenje pravila građenja, bez izrade urbanističkog projekta. Međutim, usled stečenih uslova na lokaciji u pogledu položaja susednih bočnih objekata, cilj izrade urbanističkog projekta jeste primena pravila da se „rastojanja od susednog objekta primenjuju kao provera i eventualna korekcija rastojanja od bočnih granica parcele odnosno kada je na parceli objekat dobrog boniteta, ali na manjem rastojanju od dozvoljenog“, jer ono u ovom konkretnom slučaju utiče na izgradnju funkcionalnog objekta, navodi se u urbanističkom projektu koji je na javnom uvidu.
Zonu čine stambeni blokovi između ulica Bulevar oslobođenja, Vojvode Stepe i Kumodraške, kao i između Zaplanjske i Braće Jerkovića u kojima je izvršena transformacija porodičnog u višeporodično stanovanje.
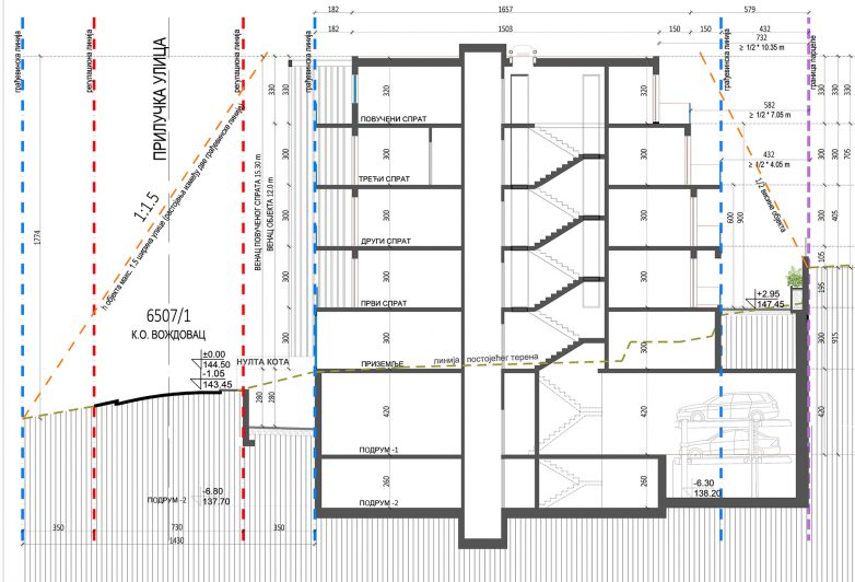
Viši spratovi objekta kaskadno su smicani čime su ostvarene kvalitetnije vizure iz stanova na trećem i povučenom spratu.
Osnovna namena objekta je stambena, sa poslovno-administrativnim sadržajima u prizemlju. Prema pravilima građenja, građevinska linija je na ovoj lokaciji uvučena od regulacione za 3,5 m. Kako se na susednim parcelama nalaze slobodnostojeći objekti, i predmetni objekat je projektovan kao slobodnostojeći, navodi se u UP.
Oblikovanje je diktirano urbanističkim merama tako da su viši spratovi objekta kaskadno smicani i tako su dobili kontinualne terase čime su ostvarene kvalitetnije vizure iz prostranijih stanova na trećem i povučenom spratu. Venac objekta je na 12,00 m od nulte kote, dok je visina venca povučenog sprata na 15,30 metara.
Budući da je teren parcele pod nagibom u pravcu severoistok-jugozapad, pristupne kote su različite za kolski i pešački ulaz.
Struktura stanova
Prizemni deo objekta se koristi u administrativno-poslovne svrhe i kao ulaz u stambeni deo objekta. U prizemlju je projektovan jedan poslovni prostor ukupne površine 117 m2.
Objekat sadrži šest stambenih jedinica. Struktura stanova je rasponu od dvosobnih do četvorosobnih stanova. Na prvom i drugom spratu su projektovana po dva stana – trosoban stan sa orijentacijom ka ulici i dvosoban stan ka zadnjem dvorištu. Na trećem i povučenom spratu predviđen je jedan stan po etaži.
Oblikovanje i materijalizacija objekta se zasniva na skladnim proporcijskim odnosima punog i praznog, jasnoj geometriji otvora i njenoj relaciji sa zatvorenim površinama, logičnoj upotrebi građevinskih materijala u horizontalnom i vertikalnom pravcu, navodi se u urbanističkom projektu.
Krov objekta je projektovan kao ravan – neprohodan krov, sa svim potrebnim hidroizolacionim i termoizolacionim slojevima.
Grafički prilozi
Javni uvid do 30. septembra
Zainteresovana lica mogu tokom javne prezentacije da izvrše uvid u urbanistički projekat, kao i da svoje primedbe i sugestije na planirana rešenja dostave najkasnije do 30. septembra 2021. godine.







super vizura sa trećim i povučenim spratom, a što je prizemlje ko suteren i prvi sprat ko prizemlje? šta ćemo sa tim? ma renderi lažu majku im, dajte google earth da realno vidimo stanje hahaha