Naselje na Makiškom polju prilagođeno pešacima i biciklistima
Nova beogradska urbana celina osmišljena je tako da svojim zelenim površinama i mrežom staza ne daje prioritet automobilima.
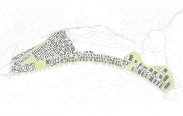
Na arhitektonskom-urbanističkom konkursu za budući izgled Makiškog polja prvu nagrada dodeljena je autorskom timu kojeg je činio Dragan Marčetić i Milan Maksimović sa saradnikom Mihailom Pejčinovićem. Formiran je koncept novog ambijentalnog područja Beograda koje istovremeno duboko korespondira sa okruženjem i predstavlja novo težište u prostornom kontekstu. Projektantsko i programsko rešenje osim što je primereno značaju prostorne pozicije lokacije u kontekstu povezivanja sa okruženjem, utemeljeno je i na vrednovanju postojećih prirodnih i funkcionalnih značenja lokacije.
Planirana je i nova pešačko-biciklistička pasarela preko Savske magistrale, koja treba da omogući pešačku i biciklističku vezu sa Adom Ciganlijom.
Posebno je obraćena pažnja na analizi ekonomske vrednosti lokacije kako bi se ostvarilo racionalna i održiva koncepcija za buduću novu urbanu gradsku celinu. Ovakva koncepcija, ostvarena je kroz analizu područja sa aspekta planirane urbanizacije kako bi se ponudilo celovito oblikovana i ekonomski opravdano rešenje koje uključuje javne sadržaje, objekte stanovanja, poslovanja i privredno-komercijalnih delatnosti. Prilikom planiranja usklađeni su elementi postojeće i novoplanirane infrastrukturne izgradnje, kao jedno od važnih obeležja ovog područja u kontekstu grada kao celine. Kako je povod za raspisivanje konkursa činjenica da se ovo značajno područje danas potpuno neuslovno koristi, ponuđeno je rešenje koje teži da u potpunosti realizuje značajan funkcionalni, prostorni i investicioni potencijal danas neiskorišćenog gradskog resursa.
Celina koja se sama razvija
Na osnovu analiziranih prostornih ograničenja i potencijala, definisane su realne razvojne mogućnosti ovog prostora u kontekstu širih trendova savremene urbanizacije. Kako bi se opravdao značaj i specifičnost geomorfološkog područja, težilo se da se ostvari optimalno zoniranje prema morfološkim, planskim, ambijentalnim i drugim karakteristikama. Na taj način su definisani elementi oblikovanja celog područja na način da se mogu pretočiti u pravila građenja kroz narednu fazu implementacije date urbanističke koncepcije. Kroz artikulaciju urbanističke koncepcije definisan je sadržaj i obuhvat javnog prostora kako bi se ostvarila dispozicija i ravnoteža između različitih funkcionalnih celina i kasnijeg urbanog razvoja. Osnovni cilj ovakve koncepcije u krajnjem smislu jeste nova urbana celina koja može samostalno da se razvija kroz opredeljenja održivog razvoja, ekologije i ekonomske opravdanosti.
Osnovni koncept polazi od prostorne geometrije nove gradske matrice koje je izvedena iz dominatnog saobraćajnog pravca Savske magistrale. Mreža blokova prati blago zavojnu geometriju magistrale koja je istovremeno usklađena i sa postojećim železničkim postrojenjima Ranžirne stanice Beograd. Ovakva koncepcija, na određeni način se nadovezuje i na koncept naselja Čukarička padina, što predstavlja logičan potez s obzirom da se duž magistralnog pravca ostvaruje jedinstveno oblikovana celina uz međusobno nadopunjavanje prostornih i funkcionalnih kvaliteta šireg područja. Sa druge strane, iznad neposredne zone uz Savsku magistralu, koncipirana je nova urbana matrica koja se oslanja na Ulicu Milorada Jovanovića i naselja Žarkovo i Bele vode. Na taj način, ostvaruje se budući prostorni kontinuitet između ovih celina i potencijal da novoformirano gradsko područje postane težište ozbiljnijeg urbanog razvoja. Ovo je od posebnog značaj u smislu kvalitetnije saobraćajne povezanosti ka Savskoj magistrali i centralnom gradskom području.
Koncept saobraćaja
Postojeća saobraćajna matrica u obodu konkursnog područja, kao i primarna infrastrukturna mreža, usvojena su kao fiksni elementi prostorno-urbanističke koncepcije, dok je sama koncepcija saobraćajnog rešenja izvedena iz uslova GUP Beograda i PGR Beograda. Osnovni pristup tretiranom području predviđen je iz ulice Milorada Jovanovića i Savske magistrale, koje su u odnosu na ovo područje, posmatrane kao tranzitne saobraćajnice. Iz tog razloga saobraćajno rešenje je koncipirano tako da se smanji opterećenje priključaka na ulicu Milorada Jovanovića s obzirom da je ova saobraćajnica PGR-om Beograda tretirana kao ulica prvog reda. Priključak ovog područja na Savsku magistralu planiran je sa buduće denivelisane rasrksnice koja je predviđena PGR-om
Beograda.
U okviru svih sabirnih saobraćajnica nije predviđeno ulično parkiranje, dok su kolski prilazi parcelama i privatnim garažama svedeni na minimum.
Centralno saobraćajno „napajanje“ konkursnog područja predviđeno je mrežom sabirnih saobraćajnica koje su projektovane kao 2h2 trake sa ostrvskom površinom između saobraćajnica različitog smera. Mrežu sabirnih saobraćajnica čini ulica 1-1 koja je paralelna sa Savskom magistralom, dok poprečne sabirne saobraćajnice omogućuju njeno povezivanje sa ulicom prvog reda (Milorada Jovanovića), čineći jedinstven otvoren sistem brzih veza kroz čitavo naselje. Mreža pristupnih saobraćajnica, kao i sekundarnih sabirnih ulica, usklađena je sa geometrijom blokova čineći pravilnu mrežu u sistemu ortogonalnog rastera. Na presecima sabirnih saobraćajnica, na kojima se očekuje povećan obim saobraćaja, planirana je izgradnja raskrsnica tipa kružni tok, kako bi se maksimalno omogućila saobraćajna protočnost i bezbednost ukrštanja.
Mirujući saobraćaj
Koncept saobraćjnog rešenja povezan je i sa konceptom mirujućeg saobraćaja. U okviru svih sabirnih saobraćajnica nije predviđeno ulično parkiranje, dok su kolski prilazi parcelama i privatnim garažama svedeni na minimum. Sa druge strane, u pristupnim saobraćajnicama dato je funkcionalno rešenje manjeg javnog parkiranja duž uličnih koridora i rešenja saobraćajnog prilaza podzemnim garažama i parking prostorima u okviru pojedinačnih parcela. U okviru ovog koncepta ispoštovani su standardi predviđeni PGR-om Beograda. U zoni komercijalnih centara sa objektima većih površina predviđeni su i otvoreni parking prostori integrisani sa zelenim površinama partera.
Pešački i biciklistički saobraćaj
Primarni pešački i biciklistički tokovi planirani su u skladu sa postojećim i planiranim trasama u neposrednom i širem okruženju. Pešačka kretanja su omogućena duž svih uličnih pravaca, kao i poprečno kroz poluotvorene i otvorene blokove.
Paralelno sa ulicom Lazarevački drum, planirana je i nova pešačko-biciklistička pasarela preko Savske magistrale, koja treba da omogući pešačku i biciklističku vezu sa Adom Ciganlijom. Ova pasarela bi sa jedne strane povezala sistem biciklističkih staza u okviru konksursnog područja sa postojećom stazom Ada-Dorćol, a sa druge strane stvorila „kružnu“ vezu sa stazom Ada-Umka, preko PGR-om planirane nove biciklističke staze poprečne na Savsku magistralu preko denivelisane raskrsnice.



