U najužem jezgru grada: Širi se Avenija kompleks u centru Kragujevca
Na javnom uvidu našle su se nove faze kompleksa koji će sadržati ukupno 194 stana i 13 lokala, kao i 211 parking mesta na otvorenom i u podzemnoj garaži.
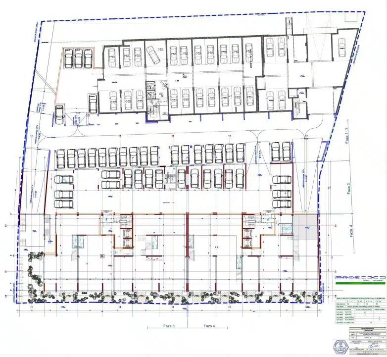
U okviru izgradnje kompleksa stambeno-poslovnog objekta između Ulice Nikole Pašića i novoprojektovane Ulice Ljube Tadića u Kragujevcu, investitor Avenija kompleks iz ovog grada nastavlja realizaciju 3. i 4. faze gradnje koja obuhvata izgradnju objekata lamele 3 i lamele 4.
Kako je navedeno u urbanističkom projektu, koji se nalazi na javnom uvidu do 11. aprila, planirani objekat sastoji se od dve lamele sa podzemnim garažama i predstavlja nastavak realizacije kompleksa započet izgradnjom lamela 1 i 2.
Urbanistički projekat uradio je Arhifakt iz Aranđelovca, idejno rešenje potpisuje Extent iz Beograda, dok je posao odgovornog projektanta poveren arhitekti Goranu S. Markoviću.
Pročitajte još na Gradnja.rs:
- Prostor Vojno-tehničkog zavoda u Kragujevcu postaje srpska Silicijumska dolina
- U Kragujevcu u planu stambeno-poslovna osmospratnica sa 233 stana

U najužem centru grada
Lokacija kompleksa od 4.704 kvadrata nalazi se u najužem centru grada, u neposrednoj blizini Trga Slobode.
Na širem prostoru bloka u kom se nalazi (definisan ulicama Miloja Pavlovića, Svetozara Markovića, dr Zorana Đinđića i Nikole Pašića), uočava se njegova značajna urbana transformacija, gde se uglavnom dotrajali građevinski fond niske spratnosti zamenjuje objektima višeporodičnog stanovanja visokih gustina, sa poslovanjem u nižim etažama.

U okviru celine kompleksa predviđena su ukupno 194 stana i trinaest lokala.
Spratnost izgrađenih lamela L1 i L2 je Po+P+6+Ps, a u okviru celine kompleksa predviđena su ukupno 194 stana i 13 lokala.
Prema projektu, Lamela 1 – Faza 1 ima 62 stana i 3 lokala, dok Lamela 2 – Faza 2 ima 34 stana i 1 lokal.
Ukupna bruto površina svih objekata u kompleksu (podzemno i nadzemno) iznosi 22.481 m2, od čega na treću fazu otpada 7.205 m2, a na četvrtu – 6.235 kvadratnih metara.
Uvećanje visine poslednje dve etaže
U okviru lamele 3 planirana je izgradnja 49 stanova i 5 lokala, dok je za lamelu 4 predviđen identičan broj stanova (49), ali i jedan lokal manje u odnosu na lamelu 3 (4 lokala).
Predviđena spratnost novoprojektovanih lamela 3 i 4 je Po+P+G+7+Ps, a planirano je uvećanje visine poslednje dve etaže (7 i Ps) radi formiranja ozelenjenih krovnih terasa.
U okviru visokog prizemlja (prizemlje sa galerijom) lamela 3 i 4 predviđeni su poslovni sadržaji – lokali i stambeni ulazi (stepenišni prostor sa liftovima).

211 parking mesta u kompleksu
Ukupan broj parking mesta u kompleksu iznosi 211. Ukupan broj parking mesta na nivou partera i otvorenog parkirališta na dvorišnom platou iznosi 69.
U podzemnim parking garažama previđeno je parkiranje ukupno 142 automobila.









