Bilo jednom u Beogradu: Hotel Jugoslavija i san o modernom gradu
Dok čekamo na celovitu obnovu kultnog objekta, podsetićemo se kako je izgrađen najveći, najmoderniji i najopremljeniji hotel u socijalističkoj Jugoslaviji.
Formiranje nove Jugoslavije posle Drugog svetskog rata bilo je praćeno intenzivnom obnovom i izgradnjom. Konstituisanje novog toka u arhitektonskom stvaralaštvu je usledilo nakon raskida odnosa sa Sovjetskim Savezom a samim tim i strogom doktrinom socijalističkog realizma.
Jedan od projektantskih zadataka koji je proizilazio iz nove kolektivne pojavnosti odnosio se na projektovanje reprezentativnog hotela, po tipu najčešće gradskog, kao poprišta društvenog života sa izraženim preplitanjem estetskog i funkcionalnog.
Izgradnja reprezentativnog hotela se vezuje prevashodno za novi društveni poredak u kome je pitanje urbanizacije predstavljalo jedan od osnovnih aspekata modernizacije. U takvom kontekstu hotel postaje univerzalni arhitektonski izraz i svojevrsni tipološki fenomen kroz koji se ispoljavaju moderne premise i ideološki atributi progresivnih težnji.
Pročitajte još na Gradnja.rs:

Upravljački grad sa monumentalnim državnim zdanjima
Prvi novi reprezentativni hotel čijoj se izgradnji pristupilo u posleratnoj Jugoslaviji bio je veliki državni hotel predviđen urbanističkim projektom Novog Beograda. Izgradnja Novog Beograda predstavljala je realizaciju ambicioznog plana upravljačkog grada sa monumentalnim državnim zdanjima.
Lokacija za Državni reprezentativni hotel na Dunavskom keju, pored železničke stanice u Zemunu, bila je određena u Idejnom planu Novog Beograda iz 1948. godine arhitekta Nikole Dobrovića.
Hotel se našao među prvim objektima javne namene čija realizacija je bila planirana već u prvoj fazi izgradnje Novog Beograda, nakon sprovedenih konkursa. Njihovu izgradnju su započele omladinske radne brigade 11. aprila 1948. godine (Savezno izvršno veće – SIV, reprezentativni državni hotel, studentski grad, stambeno naselje Tošin bunar i uređenje obale ispred zgrade hotela i SIV-a).
Sva ova gradska zdanja su, prema navodima Nikole Dobrovića, glavnog arhitekta grada Beograda, predstavljale pionirska ostvarenja epohalne gradoosnivačke delatnosti tog vremena.

Početak nove epohe u jugoslovenskoj arhitekturi
Na užem arhitektonskom konkursu za zgradu državnog reprezentativnog hotela, na kome je prispelo trinaest radova, prvu nagradu je dobio tim arhitekata iz Hrvatske, odnosno Projektnog zavoda Hrvatske – Mladen Kauzlarić, Lavoslav Horvat i Kazimir Ostrogović, dok su drugu nagradu podelili autori iz Projektantskog zavoda Srbije – arhitekt Momčilo Belobrk i Tehničkog fakulteta Univerziteta u Ljubljani – arhitekt Edvard Ravnikar i saradnik student arhitekture Branko Kocmut.
Konkurs je bio raspisan između državnih projektantskih organizacija kako bi se podstaklo njihovo aktivno učešće na konkursima kroz novu formu kolektivnog rada, te ispitao način rada u toku projektovanja kroz diskusije, definisanje problemskog okvira, sučeljavanje mišljenja i definisanje pojmova.
U osvrtu na ishod konkursa za idejno rešenje zgrade hotela arhitekt Dušan Momčilović navodi kako je konkursima za reprezentativna državna zdanja obeležen početak nove epohe u jugoslovenskoj arhitekturi, a arhitektima pružene mogućnosti da usavršavaju i razvijaju svoje mogućnosti zahvaljujući postavljenim zahtevima, sagledavanju savremenih problema i zalaganjima na izgradnji novih uslova za život ljudi u Jugoslaviji.

U prvonagrađenom projektu žiri je naročito vrednovao jasno diferenciranje i grupisanje prostorija.
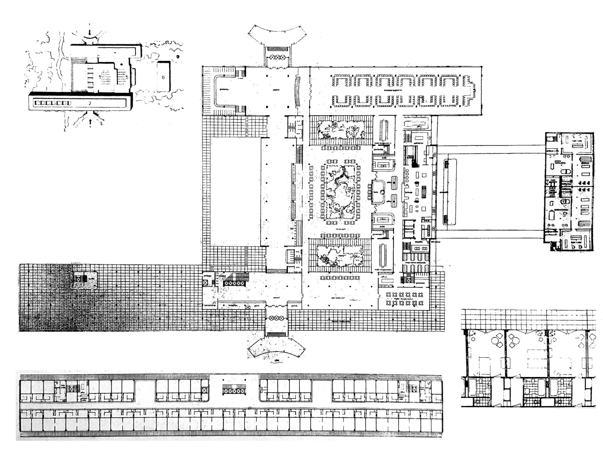
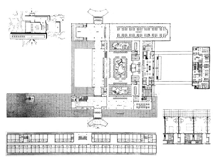
O složenosti i zahtevnosti izrade projekta hotela ukazuju i programski elementi prema kojima je trebalo projektovati veliki savremeni hotel sa 250 do 300 kreveta i prostorima za svečane bankete za oko 500 osoba, voditi računa o pravilnoj organizaciji hotelskih usluga i pravilnoj diferencijaciji hotelskih funkcija (reprezentativnog dela i ekonomskih prostorija), obezbediti odvojene i lake pristupe pojedinim prostorijama uz izbegavanje ukrštanja komunikacija, te voditi računa o reprezentativnoj obradi hotela i njegovog enterijera.
U prvonagrađenom projektu žiri je naročito vrednovao jasno diferenciranje i grupisanje prostorija, kao i to da se vodilo računa o različitim funkcijama koje čine deo hotela. Autori su projektovali hotel sa 50 dvosobnih apartmana, 50 dvokrevetnih i 100 jednokrevetnih soba s posebnim kupatilom i toaletom za svaku smeštajnu jedinicu.
Pored restoranskog dela i društvenih prostora, hotelu su dodate i reprezentativne sale i saloni za bankete. U oblikovnom smislu to je slobodnostojeći objekat u ozelenjenom gradskom bloku u vidu jednostavne prizmatične geometrije dugačkog šestospratnog smeštajnog dvotrakta postavljenog na proširenu bazu duplog prizemlja povezanog sa aneksima u kojima su projektovani zajednički hotelski sadržaji.

Rešenje za fundiranje kao „veliki eksperiment“
Specifičnost koja se vezuje za početak izgradnje reprezentativnog hotela u Novom Beogradu jeste njegovo fundiranje. Zbog prirode i karakteristika terena hotel nije mogao da ima podrum i suteren (prisustvo podzemnih voda), što je u projektantskom smislu stvaralo dodatne poteškoće.
Naime, uslovi za fundiranje hotela na šipovima su se pokazali lakši nego kod zgrade Predsedništva vlade, pošto bi išli na manju dubinu, međutim, kako se prvobitnim projektom izričito zahtevalo da se šipovi pobijaju u već izveden i slegnut nasip, siguran od uticaja vode i bilo kakvog pomeranja, ovakvo rešenje nije bilo izvodljivo. Stoga je rukovodstvo izgradnje Novog Beograda postavilo imperativ da se pokušaju naći novi metodi temeljenja koji isključuju Franki-mašine za čije se korišćenje morala obezbediti strana licenca.
Stoga se poseglo za novom metodom temeljenja javnih zgrada za koje su se prema dotadašnjim shvatanjima isključivo primenjivali šipovi. Nakon duže diskusije donet je zaključak da se hotel može fundirati na temeljnoj ploči debljine 60 cm, ojačanoj podužnim i poprečnim rebrima visine 2,4 m, kako bi se dobila masivna kasetirana temeljna konstrukcija. Iznalaženje ovog rešenja, koje je viđeno kao „jedan veliki eksperiment“, bilo je, kako se naglašavalo, „od osobitog interesa za izgradnju Novog Beograda“, jer je omogućilo ubrzanje i pojeftinjenje procesa izgradnje.

Najveći, najmoderniji i najopremljeniji hotel u zemlji
Nakon što su radovi na izgradnji Novog Beograda obustavljeni 1949. godine zaustavljena je i izgradnja hotela na kome je do tada bila realizovana cela armirano-betonska konstrukcija. Ponovna izgradnja uz pomoć kredita je nastavljena tek 1960. a okončana 1967. godine. Nakon završetka uređenja enterijera hotel bio i svečano otvoren 31. jula 1969. godine pod nazivom hotel „Jugoslavija“, postavši tada najveći, najmoderniji i najopremljeniji hotel u Jugoslaviji.
Funkcionalistički koncipiran gradski hotel se najbolje uklapao u strukturu i viziju modernog grada i gradskih sadržaja. Gradski hoteli su tokom 20. veka dobijali sve značajniju ulogu u društvenom životu mnogih mesta (postaju privlačna a često i jedina mesta za različita okupljanja, zabave, maturske večeri, Novogodišnje dočeke, kongrese i drugo), posebno što su njihovi prostorni i ugostiteljski kapaciteti, te savremeno uređeni ambijenti pogodovali različitim vidovima društvenih aktivnosti i potreba.

Tim arhitekata iz Srbije izradio projekat enterijera
Opšti ekonomski razvoj, kao i osavremenjavanje hotelijerstva, uticali su da pogoni hotelskih servisa vremenom postanu tehnološki opremljeniji i unutrašnji prostori budu uređeniji i oblikovno potpuniji. Od šezdesetih godina oblikovanje i opremanje enterijera dobija uzlet upravo kroz hotelsku arhitekturu. U dome su značajnu ulogu imala domaća preduzeća.
Koliko su na hotelsku arhitekturu uticali svetski primeri velikih hotelskih koncerna (lanaca) najbolje pokazuje projekat na osnovu koga je završen reprezentativni hotel „Jugoslavija“. Ugostiteljsko preduzeće „Metropol“, koje je preuzelo upravljanje novim hotelom, obezbedilo je njegov dovršetak uz pomoć bankarskog kredita.
Prvi korak je podrazumevao izmenu programa kako bi se zadovoljila savremena shvatanja arhitekture, hotelijerstva i građevinske operative. Na osnovu redefinisanog programa jedan od autora prvonagrađenog konkursnog rada, arhitekt Lavoslav Horvat, uradio je izmene projekta, dok je tim arhitekata iz Srbije bio angažovan na izradi projekata unutrašnjeg uređenja.

Apartmani su imali mogućnost pretvaranja u manje sobe ili povezivanja u veći i komforniji apartman.
Revidiran projekat je obezbedio povećanje smeštajnog kapaciteta bez proširenja izgrađenog gabarita. To je sprovedeno delimičnom modifikacijom društvenih prostorija i pretvaranjem pojedinih komunikacija u sobe i fleksibilnijom organizacijom apartmana, kako bi se sobe u sklopu apartmana mogle izdavati po potrebi kao posebne sobe.
Na osnovu novog programa i prostornih mogućnosti dobijeno je 345 jednokrevetnih soba, 124 dvokrevetne sobe, sedam malih apartmana, 21 standardni apartman, 10 velikih apartmana i jedan luksuzni apartman.
Uvođenjem sofe, u vidu pomoćnog ležaja, u veći broj jednokrevetnih soba omogućeno je proširenje kapaciteta, dok su apartmani imali mogućnost pretvaranja u manje sobe ili povezivanja u veći i komforniji apartman.

Izmenjenim projektom hotel se svrstao u rang prvoklasnih hotela kakve su imali mnogi zapadni gradovi.
U delu društvenih sadržaja se nalazilo više holova (ulazni, glavni, hol za razgovore, manji hol u aneksu), veliki i mali restoran povezan sa kuhinjom, zimska bašta, tri veće banket dvorane s pripadajućim salonima, kafe bar, snek-restoran, prodavnice, frizerski saloni. Pored glavnih prostorija ugostiteljskog preduzeća „Metropol“, u hotelu je bila smeštena i njegova centralna vinarija.
Izmenjenim projektom hotel se svrstao u rang prvoklasnih hotela kakve su imali mnogi zapadni gradovi. U njemu su odsedale mnoge visoke zvanice i gosti koji su posećivali Beograd, poput kraljice Elizabete, astronauta Nila Armstronga, američkih predsednika Ričarda Niksona i Džimija Kartera i drugih.
Zbog reprezentativnosti hotela posebna pažnja je bila posvećena uređenju enterijera i izboru nameštaja i pratećih predmeta i galanterije.

Još uvek bez celovite obnove
Način temeljenja preko ojačane temeljne ploče opravdao je njegovu primenu, jer su sleganja, nakon 20 godina od početka gradnje objekta, bila jedva primetna. Poseban izazov je predstavljalo uvođenje savremenih instalacija grejanja, ventilacije i klimatizacije u sve delove objekta, jer je prvobitnim projektom bila predviđena samo klimatizacija reprezentativnih prostora.
Ugradnjom klimatizacije u sobe i apartmane gost je mogao podešavanjem regulatora na termostatu podesiti željenu temperaturu. Hotel je imao i posebnu kompresorsku stanicu za klimatizaciju i dizelelektričnu centralu za automatsko uključivanje u slučaju da nestane struje u gradskoj niskonaponskoj mreži.
Uređenje obalnog dela uz hotel sprovedeno je na osnovu projekta koji je izradio Urbanistički zavod Beograda pod rukovodstvom arhitekte Branislava Jovina. Radove na završetku izgradnje i uređenju enterijera izvela je grupa „H“ Arhitektonskog projektnog zavoda iz Zagreba.
Hotel „Jugoslavija“ je bombardovan 1999. godine, ali nije obnovljen u celosti. Poslednje dve decenije se koristio za različite ugostiteljske i zabavne svrhe.
Grafički prilozi



