Japanski minimalizam: Kuća bez prozora
Ako vam skandinavski stil nije dovoljno minimalistički pogledajte kako izgleda ogoljeni japanski.
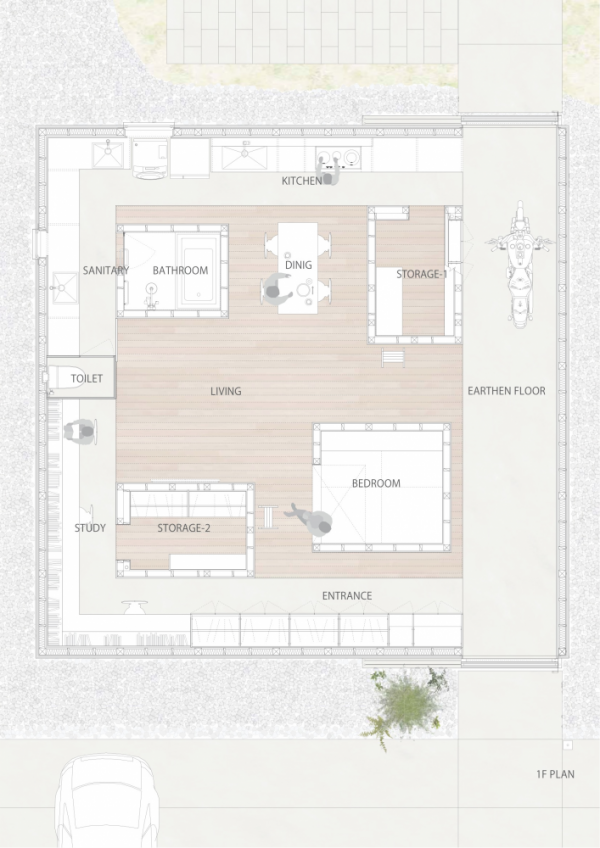
Kuća u Tokojavi koju je projektovao arhitektonski biro mA-style Architects zanimljiva je iz više aspekata. Pre svega enterijerijerski je veoma svedena ali uprskos tome ona deluje toplo i udobno. To je postignuto odabirom materijala, sa akcentom na hrastu, i igrom svetlosti. Ali odakle dolazi svetlo? I zaista, na fasadi nema prozora! Pošto je kuća u Japanu a u Japanu je sve moguće, napravljena je kuća bez prozora. To ne znači da svetla nema ali ono umesto sa strane dolazi od gore.
Svetlo kroz ravni krov ulazi u prostor i probijajući se kroz drvene grede odbija se difuzno o zidove i pravi zanimljivu igru svetlosti. Pogledajte kako to izgleda:


















